Ga naar Mens Wonen

Voorhavenkwartier 27

Sassenheim

€ 32.500,- p/j

ALGEMENE INFORMATIE
Het betreft hier een multifunctionele ruimte staande en gelegen aan het Voorhavenkwartier 27 midden in het gezellige en drukbezochte centrum van Sassenheim. Het object is bijzonder geschikt voor het vestigen van detailhandel, praktijkruimte of kantoor. Op het plein zijn diverse landelijke winkelketens gevestigd, zoals Action, Shoeby, Albert Heijn en Gall & Gall, maar ook lokale winkeliers met een divers aanbod. Het Voorhavenkwartier is zowel per auto, fiets als openbaar vervoer prima bereikbaar. Parkeren is mogelijk in de blauwe zone op het plein of in de parkeergarage onder de Albert Heijn, tevens zijn er voldoende fietsenrekken en op ongeveer 3 minuten loopafstand is er bushalte met meerdere busverbindingen.

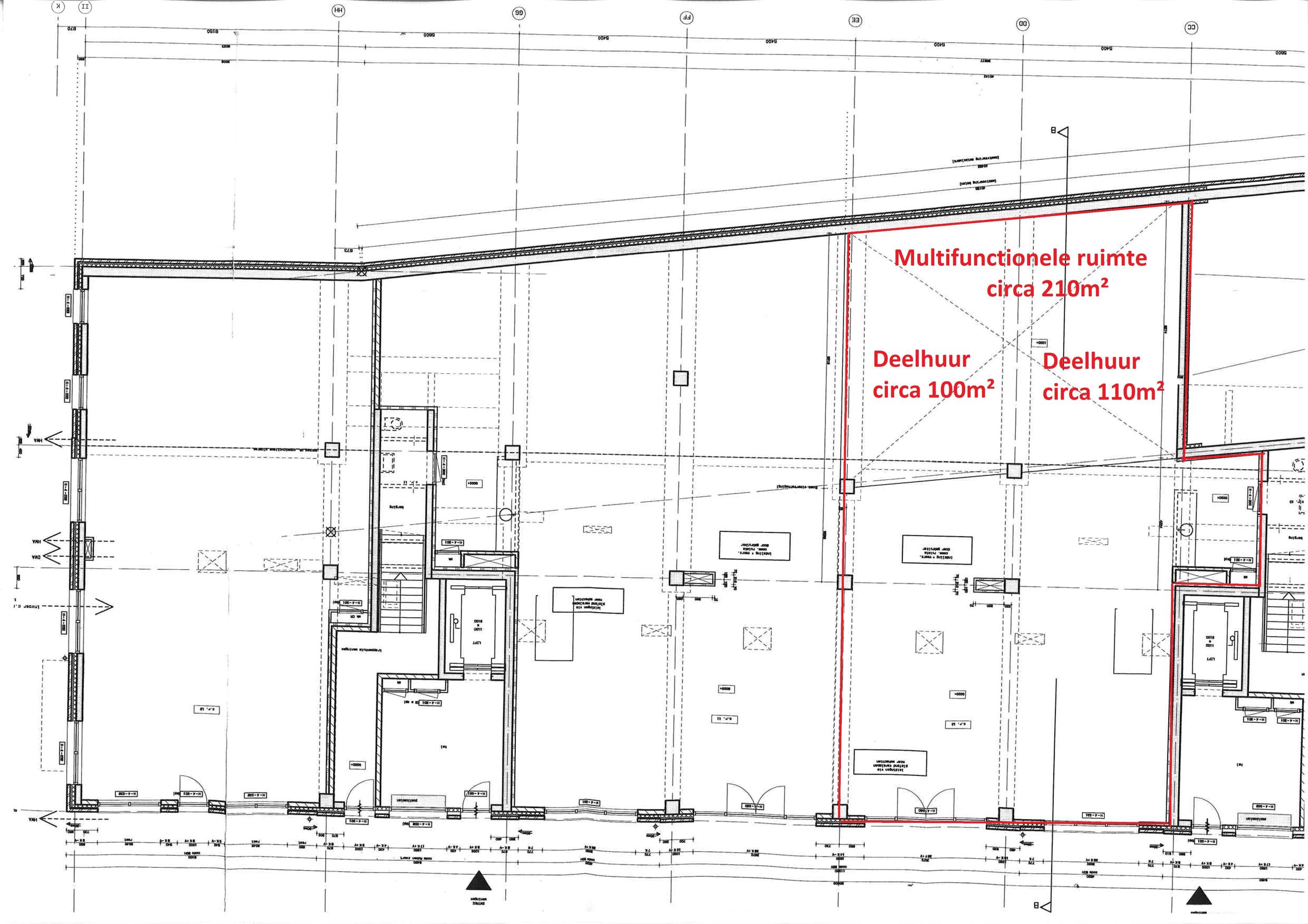
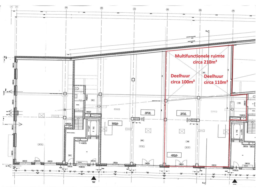
OPPERVLAKTEN
Circa 210 m² MULTIFUNCTIONELE RUIMTE
Deelhuur van 100 m² of 110m² is bespreekbaar.

KADASTRALE GEGEVENS
Gemeente : Sassenheim
Sectie : A
Nummer : 8550 A10

VOORZIENINGEN
Verhuurd wordt uitsluitend het casco + toilet.

BESTEMMING
Bestemming centrumdoeleinden welke onder andere zijn bestemd voor detailhandel, dienstverlening, horecebedrijven uit ten hoogste categorie 2, kantoren, maatschappelijke voorzieningen etc.. Voor alle actuele bestemmingsplannen kijkt u op omgevingswet.overheid.nl. Bij vragen hierover adviseren wij u contact op te nemen met de betreffende gemeente.

AANVAARDING
Oplevering en aanvaarding vindt plaats in onderling overleg met onze opdrachtgever.

HUURPRIJS
De huurprijs exclusief btw en exclusief eventuele servicekosten bedraagt:
- voor de gehele ruimte € 32.500,00
- bij deelhuur van 100m² € 17.500,00
- bij deelhuur van 110m² € 18.500,00

HUUROVEREENKOMST
Huurovereenkomst op basis van het standaard model van de Raad voor Onroerende Zaken (ROZ).

HUURTERMIJN
De termijn zoals genoemd in het standaard model van de ROZ is vijf jaar en vijf optie jaren. Een afwijkende termijn is bespreekbaar.

HUURPRIJSAANPASSING
Jaarlijks, op basis van de wijziging van het maandprijsindexcijfer volgens de consumentenprijsindex reeks CPI alle huishoudens 2015 = 100, gepubliceerd door het CBS.

OMZETBELASTING
De huurprijs wordt belast met de geldende omzetbelasting. Huurder en verhuurder opteren voor een btw belaste verhuur. Indien op basis van de nieuwe btw wetgevingsvoorstelling huurder niet aan het criterium “meer dan 90% btw belaste prestaties verricht” voldoet, en zodoende het verzoek om btw belaste verhuur niet geaccepteerd wordt, dan zal de huurprijs worden verhoogd met een nader door verhuurder vast te stellen percentage.

BETALINGEN
Per kwartaal vooruit.

ZEKERHEIDSSTELLING
Bankgarantie of waarborgsom ter grootte van drie maanden huur met btw.

INTERESSE?
Voor het maken van een bezichtigingsafspraak kunt u contact met ons opnemen. Als u na bezichtiging interesse heeft in dit pand dan kunt u ons een huurvoorstel doen toekomen. Dit voorstel dient te voldoen aan de volgende criteria:
- Omschrijving wie u bent en wat u doet.
- Huurprijs, ingangsdatum en contracttermijn.
- Aanvullende informatie, zoals uw website en Kvk nummer, is altijd welkom.

BIJZONDERHEDEN
- Elke transactie behoeft de nadrukkelijke goedkeuring van de eigenaar.
- Er is geen NEN2580 meetrapport aanwezig. Verhuurder, danwel Mens Makelaars aanvaarden geen aansprakelijkheid voor afwijkingen in de opgegeven maten cq. plattegrond. Huurder verklaart in de gelegenheid te zijn gesteld om de opgegeven maten te controleren.
- Mocht er door bemiddeling van Mens Bedrijfsmakelaardij B.V. voor dit object een transactie tot stand worden gebracht, dan zult u als huurder ons hiervoor geen kosten of courtage verschuldigd zijn.
- Als makelaar zijn wij in bepaalde gevallen verplicht om in het kader van de Wet ter voorkoming van Witwassen en Financiering Terrorisme (Wwft) een cliëntonderzoek uit te voeren.
- De vermelde informatie is van algemene aard en is niet meer dan een uitnodiging om in onderhandeling te treden. Aan de inhoud van deze informatie kunnen geen rechten worden ontleend.

Overdracht

Huurprijs
€ 32.500,- p/j
Status
beschikbaar
Aanvaarding
in overleg

Bouw

Hoofdbestemming
winkelruimte
Bouwjaar
2003

Kantoorruimte

Oppervlakte
210 m²
In units vanaf
100 m²
Verdiepingen
1
Voorzieningen
Toilet

Winkelruimte

Publieksgerichte dienstverlening
Ja
Detailhandel
Ja
Showroom
Ja
Oppervlakte
210 m²
In units vanaf
100 m²
Verkoopvloer oppervlakte
210 m²
Verdiepingen
1
Frontbreedte
1500
Horeca toegestaan
Ja
Welstandsklasse type
A1

Buitenruimte

Ligging
Winkelgebied stadscentrum

Vraag meer informatie aan

Deel via social media