Ga naar Mens Wonen

Luzernestraat 9

Nieuw-Vennep

€ 48.550,- p/j

ALGEMENE INFORMATIE
Aan de Luzernestraat 9 te Nieuw-Vennep bevindt zich dit multifunctionele bedrijfs-/kantoorobject. Het pand is op uitstekende locatie op bedrijventerrein Spoorzicht gelegen. Dit bedrijventerrein is per auto goed bereikbaar via de Spoorlaan en via de snelwegen A4/A44. De luchthaven Schiphol ligt op ongeveer 10 minuten rijafstand en op 10 minuten lopen bevindt zich het NS-station Nieuw-Vennep.

OPPERVLAKTEN
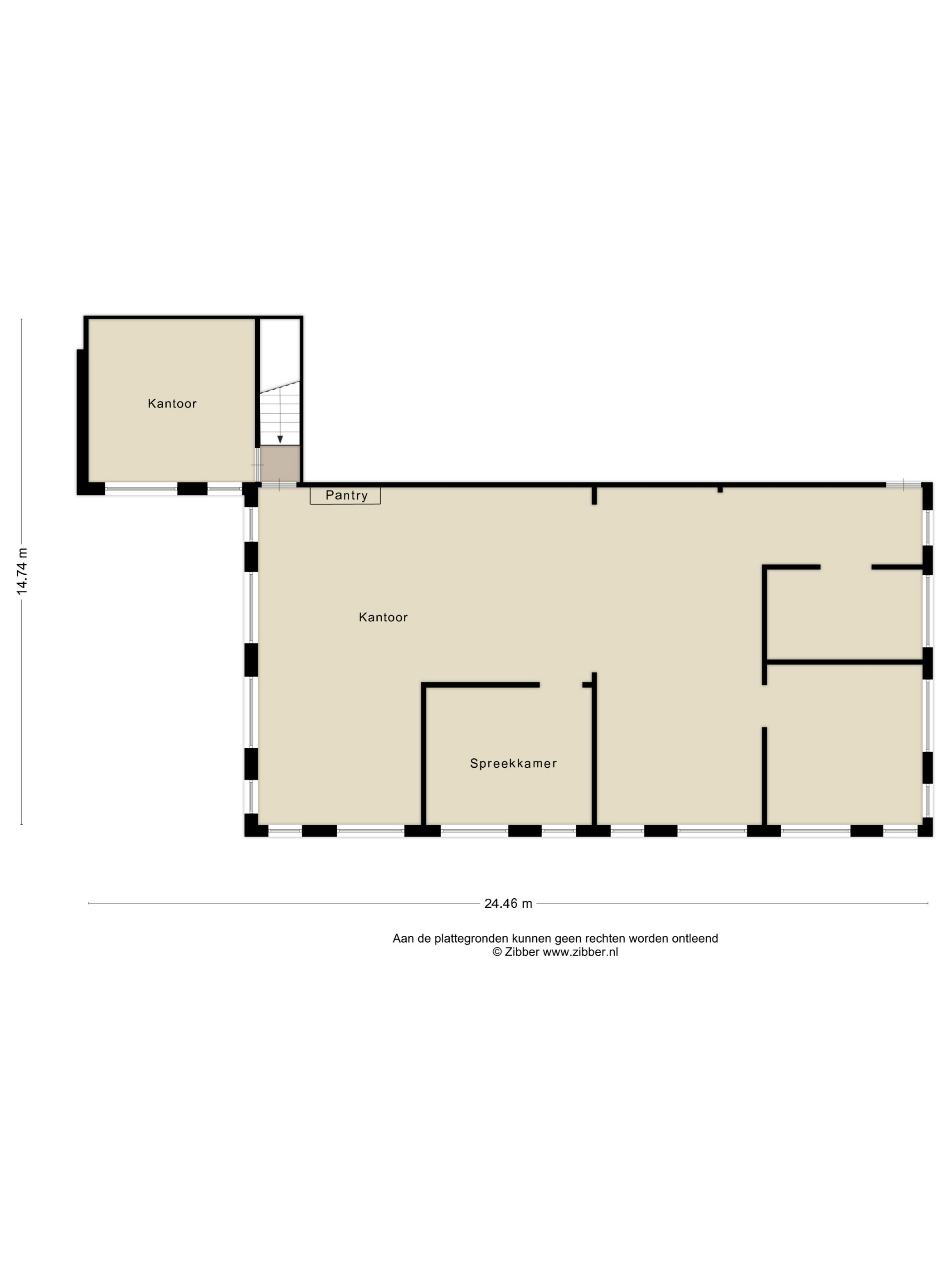
Circa 112 m² ENTREE-/KANTOOR-/SHOWROOMRUIMTE begane grond.
Circa 180 m² BEDRIJFSRUIMTE begane grond.
Circa 225 m² KANTOORRUIMTE 1e verdieping.

Het is eventueel mogelijk om circa 100m² kantoorruimte op de 1e verdieping minder te huren, maar dit heeft niet de voorkeur van onze opdrachtgever.

KADASTRALE GEGEVENS
Gemeente Haarlemmermeer, sectie AM, nummer 2017 gedeeltelijk.

VOORZIENINGEN
Het pand is onder andere voorzien van een overheaddeur, systeemplafonds met verlichtingsarmaturen, alarminstallatie, airco, verwarming middels CV-ketel en radiatoren in de kantoorruimte. Het geheel beschikt over 8 parkeerplaatsen.

BESTEMMING
Bestemming Gemengd -2, bron: Ruimtelijke Plannen. De Gemengd -2 gronden zijn bestemd voor bedrijfsactiviteiten tot en met categorie 3.1, alsmede dienstverlening. Voor alle actuele bestemmingsplannen kijkt u op ruimtelijkeplannen.nl. Bij vragen hierover adviseren wij u contact op te nemen met de betreffende gemeente.

AANVAARDING
Oplevering en aanvaarding vindt plaats in onderling overleg met onze opdrachtgever en is op korte termijn mogelijk.

HUURPRIJS
De huurprijs bedraagt € 48.550,00 exclusief servicekosten en btw per jaar en is als volgt opgebouwd:
Circa 112 m² entree-/kantoor-/showroomruimte begane grond € 100,00 per m² exclusief servicekosten en btw per jaar.
Circa 180 m² bedrijfsruimte begane grond € 70,00 per m² exclusief servicekosten en btw per jaar.
Circa 225 m² kantoorruimte 1e verdieping € 110,00 per m² exclusief servicekosten en btw per jaar.

SERVICEKOSTEN
De servicekosten bedragen € 150,50 exclusief btw per maand. Deze kosten betreffen een voorschot voor de levering van gas, water en elektra. Aan het einde van het jaar zal er een verrekening plaatsvinden op basis van het werkelijke verbruik.

HUUROVEREENKOMST
Huurovereenkomst op basis van het standaard model van de Raad voor Onroerende Zaken (ROZ).

HUURTERMIJN
De termijn zoals genoemd in het standaard model van de ROZ is vijf jaar en vijf optie jaren. Een afwijkende termijn is bespreekbaar.

HUURPRIJSAANPASSING
Jaarlijks, op basis van de wijziging van het maandprijsindexcijfer volgens de consumentenprijsindex reeks CPI alle huishoudens 2015 = 100, gepubliceerd door het CBS.

OMZETBELASTING
De huurprijs wordt belast met de geldende omzetbelasting. Huurder en verhuurder opteren voor een btw belaste verhuur. Indien op basis van de nieuwe btw wetgevingsvoorstelling huurder niet aan het criterium “meer dan 90% btw belaste prestaties verricht” voldoet, en zodoende het verzoek om btw belaste verhuur niet geaccepteerd wordt, dan zal de huurprijs worden verhoogd met een nader door verhuurder vast te stellen percentage.

BETALINGEN
Per kwartaal vooruit.

ZEKERHEIDSSTELLING
Bankgarantie of waarborgsom ter grootte van drie maanden huur met btw.

INTERESSE?
Voor het maken van een bezichtigingsafspraak kunt u contact met ons opnemen. Als u na bezichtiging interesse heeft in dit pand dan kunt u ons een huurvoorstel doen toekomen. Dit voorstel dient te voldoen aan de volgende criteria:
- Omschrijving wie u bent en wat u doet.
- Huurprijs, ingangsdatum en contracttermijn.
- Aanvullende informatie, zoals uw website en Kvk nummer, is altijd welkom.

BIJZONDERHEDEN
- Elke transactie behoeft de nadrukkelijke goedkeuring van de eigenaar.
- Er is geen NEN2580 meetrapport aanwezig. Verhuurder, danwel Mens Makelaars aanvaarden geen aansprakelijkheid voor afwijkingen in de opgegeven maten cq. plattegrond. Huurder verklaart in de gelegenheid te zijn gesteld om de opgegeven maten te controleren.
- Mocht er door bemiddeling van Mens Bedrijfsmakelaardij B.V. voor dit object een transactie tot stand worden gebracht, dan zult u als huurder ons hiervoor geen kosten of courtage verschuldigd zijn.
- Als makelaar zijn wij in bepaalde gevallen verplicht om in het kader van de Wet ter voorkoming van Witwassen en Financiering Terrorisme (Wwft) een cliëntonderzoek uit te voeren.
- De vermelde informatie is van algemene aard en is niet meer dan een uitnodiging om in onderhandeling te treden. Aan de inhoud van deze informatie kunnen geen rechten worden ontleend.

Overdracht

Huurprijs
€ 48.550,- p/j
Status
onder optie
Aanvaarding
in overleg

Bouw

Hoofdbestemming
bedrijfsruimte
Bouwjaar
1999

Bedrijfshal

Oppervlakte
180 m²
Vrije hoogte
630
Luchtbehandelingen
Airco
Voorzieningen
Overheaddeuren, toilet, pantry
Bouwhoogte
630

Kantoorruimte

Oppervlakte
337 m²
Luchtbehandelingen
Airco
Voorzieningen
Inbouwarmaturen, te openen ramen
Verdiepingen
2

Terrein

Buitenruimte

Ligging
Bedrijventerrein

Vraag meer informatie aan

Deel via social media