Ga naar Mens Wonen

Leidsevaart 24

Lisse

€ 50,- p/m² p/j

ALGEMENE INFORMATIE
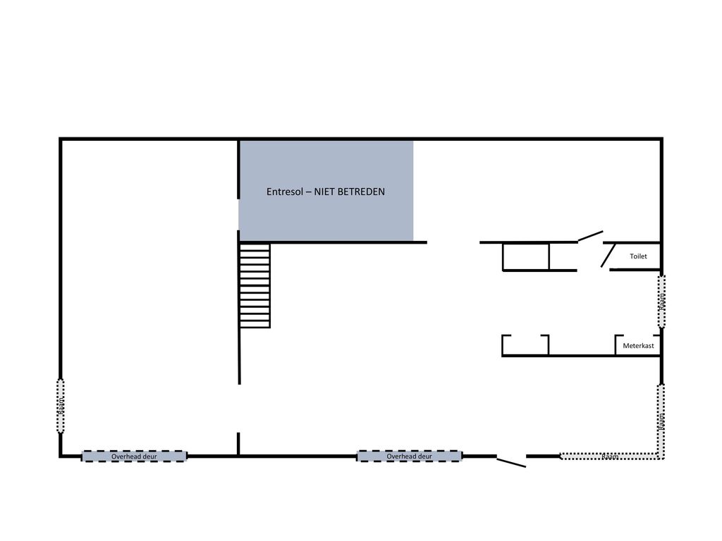
Het betreft hier circa 465 m² bedrijfsruimte welke bijzonder geschikt is voor opslag van (grote) materialen. Dit object is landelijk gelegen, nabij de doorgaande weg tussen Lisse en Noordwijkerhout. Het object kan eventueel opgedeeld worden in 2 delen, te weten een deel van circa 285 m² en een deel van circa 180 m². Dit object is niet geschikt voor autogerelateerde activiteiten.

KADASTRALE GEGEVENS
Gemeente Lisse, sectie C, nummer 5128 gedeeltelijk.

VOORZIENINGEN
Het pand is voorzien van een overheaddeur, dakramen, basis elektra en LED-verlichting, er is geen verwarming aanwezig.

BESTEMMING
Bestemming bedrijven. Voor alle actuele bestemmingsplannen kijkt u op omgevingswet.overheid.nl. Bij vragen hierover adviseren wij u contact op te nemen met de betreffende gemeente.

AANVAARDING
Oplevering en aanvaarding vindt plaats in onderling overleg met onze opdrachtgever.

HUURPRIJS
De huurprijs bedraagt € 50,00 exclusief btw per m² per jaar.

HUUROVEREENKOMST
Huurovereenkomst op basis van het standaard model van de Raad voor Onroerende Zaken (ROZ).

HUURTERMIJN
De huurtermijn is twee jaar en twee optie jaren.

HUURPRIJSAANPASSING
Jaarlijks, op basis van de wijziging van het maandprijsindexcijfer volgens de consumentenprijsindex reeks CPI alle huishoudens 2015 = 100, gepubliceerd door het CBS.

OMZETBELASTING
De huurprijs wordt belast met de geldende omzetbelasting. Huurder en verhuurder opteren voor een btw belaste verhuur. Indien op basis van de nieuwe btw wetgevingsvoorstelling huurder niet aan het criterium “meer dan 90% btw belaste prestaties verricht” voldoet, en zodoende het verzoek om btw belaste verhuur niet geaccepteerd wordt, dan zal de huurprijs worden verhoogd met een nader door verhuurder vast te stellen percentage.

BETALINGEN
Per kwartaal vooruit.

ZEKERHEIDSSTELLING
Bankgarantie of waarborgsom ter grootte van drie maanden huur met btw.

INTERESSE?
Voor het maken van een bezichtigingsafspraak kunt u contact met ons opnemen. Als u na bezichtiging interesse heeft in dit pand dan kunt u ons een huurvoorstel doen toekomen. Dit voorstel dient te voldoen aan de volgende criteria:
- Omschrijving wie u bent en wat u doet.
- Huurprijs, ingangsdatum en contracttermijn.
- Aanvullende informatie, zoals uw website en Kvk nummer, is altijd welkom.

BIJZONDERHEDEN
- Dit object is niet geschikt voor autogerelateerde activiteiten.
- Elke transactie behoeft de nadrukkelijke goedkeuring van de eigenaar.
- Er is geen NEN2580 meetrapport aanwezig. Verhuurder, danwel Mens Makelaars aanvaarden geen aansprakelijkheid voor afwijkingen in de opgegeven maten cq. plattegrond. Huurder verklaart in de gelegenheid te zijn gesteld om de opgegeven maten te controleren.
- Mocht er door bemiddeling van Mens Bedrijfsmakelaardij B.V. voor dit object een transactie tot stand worden gebracht, dan zult u als huurder ons hiervoor geen kosten of courtage verschuldigd zijn.
- Als makelaar zijn wij in bepaalde gevallen verplicht om in het kader van de Wet ter voorkoming van Witwassen en Financiering Terrorisme (Wwft) een cliëntonderzoek uit te voeren.
- De vermelde informatie is van algemene aard en is niet meer dan een uitnodiging om in onderhandeling te treden. Aan de inhoud van deze informatie kunnen geen rechten worden ontleend.

Overdracht

Huurprijs
€ 50,- p/m² p/j
Status
onder optie
Aanvaarding
in overleg

Bouw

Hoofdbestemming
bedrijfsruimte
Bouwjaar
1975

Bedrijfshal

Oppervlakte
465 m²
In units vanaf
180 m²

Kantoorruimte

Terrein

Buitenruimte

Ligging
Landelijk gebied

Vraag meer informatie aan

Deel via social media